ID CP2696227

Vânzare apartament cu o cameră - 35 m.p în Păcurari - Iasi

ID CP2696227

80,000 € (negociabil)

Apartament cu 1 camere de vânzare
Pacurari, Iasi
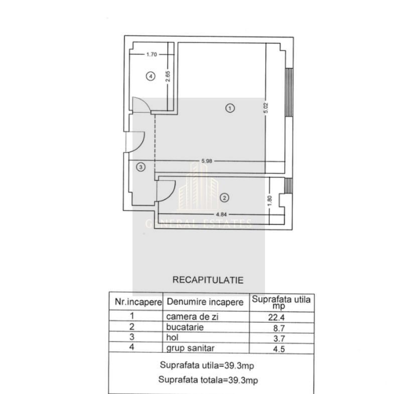
34.1 mp
2025

Spre vânzare apartament cu o cameră în Păcurari.

În imediata apropiere de pasajul Octav Băncila Pictor.

* Blocul este situat pe linia 2-a ceia ce ii oferta liniste si intimitate având în vedere zonă activa unde este poziționat.

* Blocul P+ 3, este Intabulat și are doar 24 de apartamente.

* Compartimentare: Dormitor, camera de zi, grup sanitar, lodjie.

* Carcasa monolit-beton armat, zidăria cărămidă roșie, izolarea polistiren 10 cm.

* Geamurile termopan 6 camere 3 rânduri de sticlă.

* Centrala termica prin condens

* Înălțimea tavanelor 2,80 m

* S-au folosit materiale si finisaje de calitate

* Parcari suficiente in preajma blocului.

* Deasemenea sunt disponibile planimetrii de 39-34-38 m.p.

Amplasarea comoda permite deplasarea cu usurinta fata de toate punctele sociale si comerciale.

! ! Perfect pentru Chirie si Investitie ! !

Programeaza Vizionarea, Suna acum

Citește mai mult

  • Tip apartament
    Apartament
  • Compartimentare
    Semidecomandat
  • Număr camere
    1
  • Dormitoare
    1
  • Număr bucătării
    1
  • Număr băi
    1
  • Geam la baie
    Da
  • Etaj
    2
  • Suprafață utilă
    34.1 mp
  • Disponibilitate
    Imediat
  • Confort
    3
  • Stare interior
    Finisat modern
  • Anul finisării
    2025
  • Imobil
    Bloc de apart.
  • Stadiu construcție
    Finalizată
  • An construcție
    2025
  • Construcție nouă
    Da
  • De la dezvoltator
    Da
  • Tip construcție
    Cărămidă
  • Are demisol
    Da
  • Intabulare
    Există

Facilități

Aer condiționat
Aeroterme
Apă
Apometre
Bucătărie închisă
Cabină de duș
Cadă
Calorifere
Canalizare
CATV
Centrală proprie
Contor căldură
Contor electric
Contor gaz
Curent
Curte comună
Dressing
Faianță
Ferestre care se deschid
Ferestre PVC
Gaz
Geamuri cu izolație fonică
Geamuri termopan
Gresie
Hotă
Iluminat stradal
Interfon
Internet
Izolație exterioară
Mijloace de transport în comun
Mobilat parțial
Parcare deschisă
Parchet laminat
Sistem de alarmă
Străzi asfaltate
Supraveghere video
Telefon
Ușă intrare metal
Uși interior lemn
Uși interior MDF
Videointerfon
Vopsea lavabilă
Wireless
Daniel Ciobanu
Manager Iasi

0792800007


Solicită chiar acum o vizionare
Telefon
Sună acum Solicită vizionare
Necesare:

Site-ul nu poate funcționa corect fără aceste cookie-uri. Vezi cookie-urile

Statistică:

Strângem statistici anonime despre voi, vizitatorii unici, pentru a vă îmbunătăți experiența dumneavoastră. Vezi cookie-urile

Marketing:

Pentru a ne promova mai eficient serviciile noastre, folosim cookies pentru a vă identifica și a vă oferi proprietăți și servicii personalizate. Vezi cookie-urile

Acest site folosește cookies, află detalii. Alege ce tipuri de cookies dorești să permitem: