ID CP2777785

Casă individuală cu 3 camere de vânzare în Hărman

ID CP2777785

168,000 €

Casă / Vilă cu 3 camere de vânzare
Harman
100 mp

Vă prezentăm o casă individuală modernă, situată în localitatea Hărman, la doar câteva minute de Brașov – ideală pentru o familie care își dorește liniște, confort și acces rapid către oraș.

Detalii proprietate:

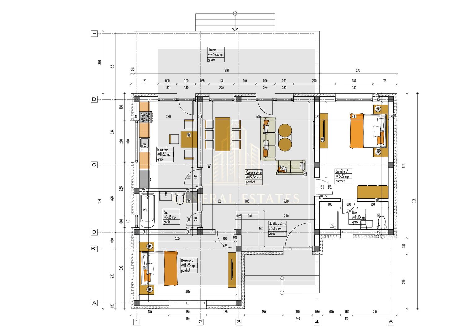
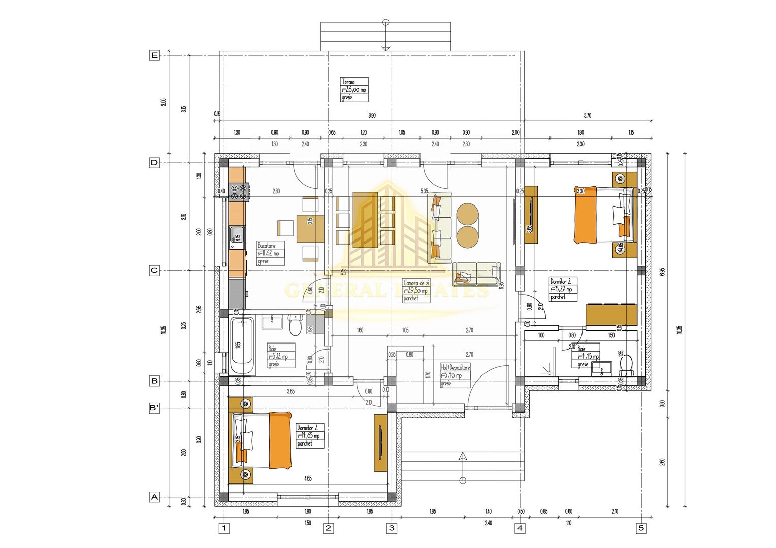
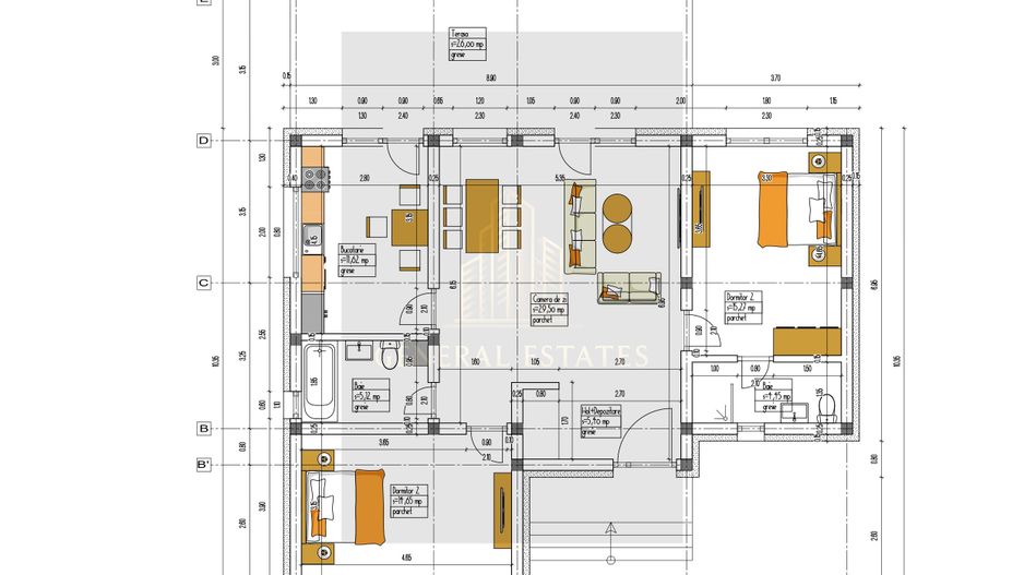
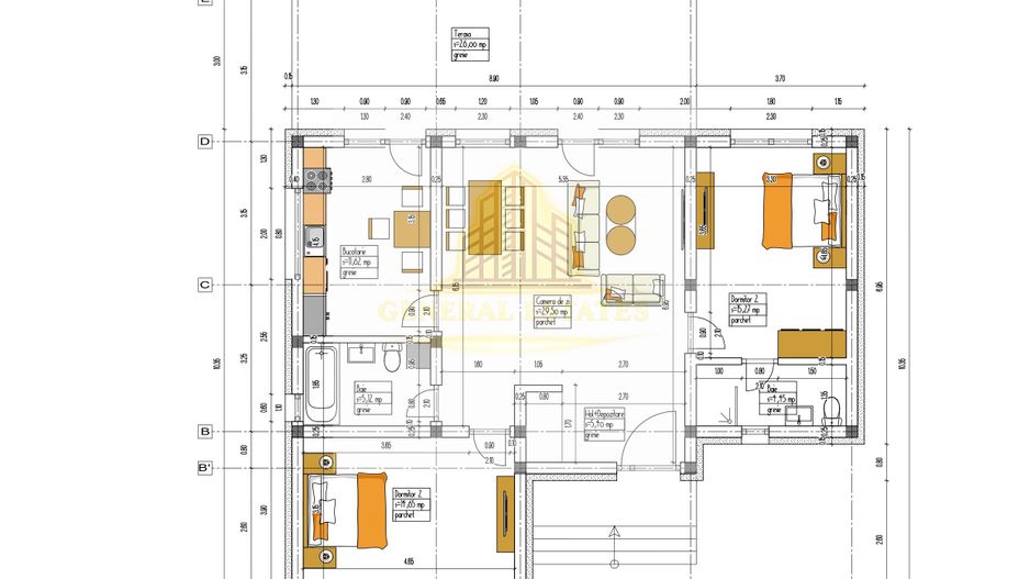
Regim de înălțime: Parter + pod pentru depozitare

Suprafață utilă: 100 mp

Suprafață construită: 120 mp

Suprafață teren: 330 mp

Terasă: 26 mp

Compartimentare:

Living spațios și luminos

Bucătărie

2 dormitoare

2 băi

Hol de acces + spații de depozitare

Acces la pod pentru depozitare suplimentară

Specificații tehnice:

Construcție din cărămidă Porotherm T30

Pereți interiori din cărămidă de 15 cm

Termoizolație cu polistiren EPS80 de 10 cm

Tâmplărie Salamander, 3 foi de sticlă

Încălzire în pardoseală pe toată suprafața utilă

Finisaje interioare la alegere

Utilități:

Apă

Canalizare

Gaz

Curent electric

Acces și localizare:

Drum asfaltat până în apropierea proprietății (ultimii metri pietruiți)

Zonă rezidențială în dezvoltare

În proximitate: supermarketuri, școală, grădinițe, restaurante, stații de transport public

Acces rapid către centrul Brașovului (aprox. 10-12 minute)

Pentru mai multe informații și programarea unei vizionări, nu ezitați să ne contactați

Citește mai mult

  • Număr camere
    3
  • Dormitoare
    2
  • Număr bucătării
    1
  • Număr băi
    2
  • Geam la baie
    Da
  • Număr terase
    1
  • Număr locuri parcare
    2
  • Disponibilitate
    Imediat
  • Tip casă
    Individual
  • Anul finisării
    2025
  • Suprafață utilă
    100 mp
  • Suprafață construită
    120 mp
  • Suprafață teren
    330 mp
  • Acoperiș
    Țiglă
  • Construcție nouă
    Da
  • Tip construcție
    Cărămidă

Facilități

Acoperiș
Apă
Apometre
Canalizare
CATV
Centrală proprie
Contor electric
Contor gaz
Curent
Debara
Dressing
Faianță
Ferestre PVC
Gaz
Gresie
Iluminat stradal
Încălzire prin pardoseală
Izolație exterioară
Mijloace de transport în comun
Parchet
Străzi asfaltate
Ușă intrare metal
Uși interior MDF
Vedere spre munte
Vopsea lavabilă
Corneliu Vrabie
Consilier imobiliar

0743647786


Solicită chiar acum o vizionare
Telefon
Sună acum Solicită vizionare
Necesare:

Site-ul nu poate funcționa corect fără aceste cookie-uri. Vezi cookie-urile

Statistică:

Strângem statistici anonime despre voi, vizitatorii unici, pentru a vă îmbunătăți experiența dumneavoastră. Vezi cookie-urile

Marketing:

Pentru a ne promova mai eficient serviciile noastre, folosim cookies pentru a vă identifica și a vă oferi proprietăți și servicii personalizate. Vezi cookie-urile

Acest site folosește cookies, află detalii. Alege ce tipuri de cookies dorești să permitem: